Objektart
Adresse
Objektdaten
Informationen
Ausstattung
Details
Die hier angebotene Immobilie wurde im Jahre 1955 verkehrsgünstig sowie zentrumsnah errichtet.
Im Laufe der Jahre erfolgten An- sowie Vorbauten so, dass Ihnen nun ca.146 qm Wohnfläche zur Verfügung stehen, die sich auf zwei Etagen verteilen.
Die drei bis vier Zimmer im Erdgeschoss werden durch die Küche nebst angrenzenden geräumigen Hauswirtschaftsraum, einem Gäste-WC sowie einer separten Dusche ergänzt.
Im Obergeschoss befindet sich das sanierte Familienbad sowie drei weitere Zimmer.
Zusatzlich zum Staurraum im Erdgeschoss bietet Ihnen der Keller ausreichend Lagerfläche.
PLUS.Punkt:
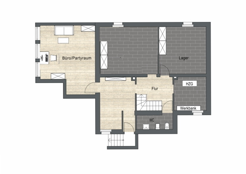
Ein Kellerraum wurde seinerzeit zum Büro ausgebaut und bietet Platz für Ihr Homeoffice oder die Möglichkeit einen Partyraum zu errichten.
Zusätzliches separates WC im Keller inklusive!
Dabei steht es Ihnen frei die Räumlichkeiten des Kellers über eine Außentreppe oder aber vom Erdgeschoss aus zu erreichen.
Ein ideales Objekt für Ihre Familie, welches mit den Räumlichkeiten im Kellergeschoss viel Platz zur Entfaltung bietet.
Sie sehen es auf den Fotos, dass Haus ist in die Jahre gekommen und braucht Ihre helfende Hand! Bietet damit jedoch die Möglichkeit Ihre ganz persönlichen Vorstellungen zu verwirklichen.
Interesse geweckt?
Kontaktieren Sie uns gerne!
KURZEXPERTISE im Überblick
GEBÄUDE: massive Bauweise | Satteldach mit Ausbauten
EG
Windfang | Flur | Gäste-WC |Zimmer | Wohnen | Essen | Zimmer | Küche
HWR | Dusche
OG
3 Zimmer | Badezimmer
Flur inkl. Bodeneinschubtreppe zum Spitzboden
KELLER
Heizungsraum | Lager | Hobbyraum | Flur | Separate Toilette | Büro-/ Partyraum
FENSTER
Holz
HEIZUNG
Gasheizung
Vechta ist Heimat!
Hier finden Sie alles, was eine junge, moderne und attraktive Kleinstadt ausmacht!.
Dank der guten Innenstadtlage bieten sich ideale Einkaufsmöglichkeiten,
Kita, Schulen, Ärzte, Apotheken sind gut erreichbar.
Im Ortsmittelpunkt pulsiert das Leben: Vechta präsentiert sich jung und aufgeschlossen!
Selbstverständlich ist für kleine Cafe´s, Restaurants und Kneipen gesorgt.
Gute Nahverkehrsanbindungen inklusive!
Neugierig geworden?
Wir freuen uns auf Ihre Kontaktaufnahme!
Setzen Sie bei Immobilien auf unsere Erfahrung und unser Engagement.
Wir verhelfen Ihnen zum Wohnobjekt Ihrer Wahl!
KÜHLING Die Immobilien Makler.
Seit 3 Generationen zu Hause in Vechta | QUALITÄT IST KEIN ZUFALL.
Ansprechpartner
Mobil: 00491635549562
anfragen-verkauf@immokuehling.com
Ich bin damit einverstanden, dass mir Karten von Google angezeigt werden. Es gelten die Datenschutzbedingungen von Google (https://policies.google.com/privacy).
Ich bin einverstanden